OFERTA NAJMU LOKALU USŁUGOWEGO

w budynku wielorodzinnym w Świętochłowicach przy ul. Śląskiej

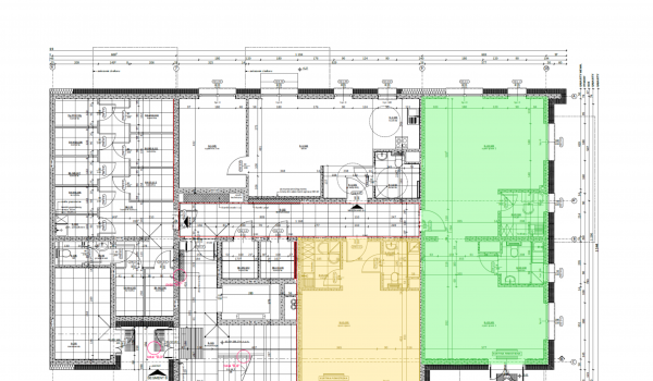
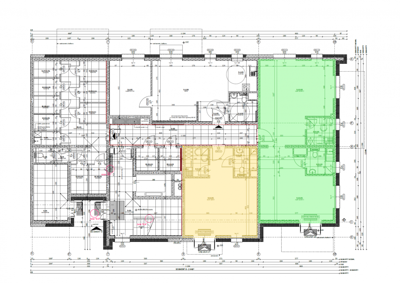
SIM Śląsk sp. z o.o. realizująca budownictwo społeczne oferuje na wynajem dwa lokale usługowe o łącznej powierzchni użytkowej 107,57 m2 z możliwością połączenia. Lokale położone są na parterze budynku wielorodzinnego w Świętochłowicach przy ul. Śląskiej.

Lokal usługowy nr 1 - powierzchnia użytkowa 38 m2 składający się z:

·         Open space – 30,22 m2

·         Toaleta – 3,64 m2

·         Pomieszczenie socjalne – 4,14 m2

Lokal usługowy nr 2 - powierzchnia użytkowa – 69,57 m2 składający się z:

·         Open space 1 – 27,51 m2

·         Open space 2 – 33,38 m2

·         Toaleta – 4,23 m2

·         Pomieszczenie socjalne 4,45 m2

Na obecnym etapie realizacji inwestycji istnieje możliwość połączenia lokali usługowych w jeden oraz pozwala na adaptację wnętrz na potrzeby działalności gospodarczej przyszłego Najemcy.

Lokale mieszczą się w zielonej i spokojnej dzielnicy Zgoda, która oferuje bardzo dobre połączenia komunikacyjne:

·         do centrum Świętochłowic – 5 min,

·         do centrum Chorzowa – 10 min,

·         do centrum Rudy Śląskiej – 10 min,

·         do centrum Katowic – 15 min.

·         500 m do Centrum Handlowe Zgoda Park,

·         1,5 km do Drogowej Trasy Średnicowej,

·         2,5 km do terenów rekreacyjnych Skałka w Świętochłowicach.

Lokale doskonale nadają się do prowadzenia działalności usługowej tj. sklep, gabinet lekarski, gabinet kosmetyczny, fryzjer, apteka itp. oraz biurowej tj. kancelaria prawna, biuro rachunkowe.

Media dostępne w budynku:

·         Centralne ogrzewanie,

·         sieć wod-kan,

·         sieć elektryczna,

·         sieć teletechniczna (światłowód).

Miesięczny koszt wynajmu ok. 40-45 zł netto/m2 (do negocjacji).

Planowane zakończenie realizacji inwestycji budowlanej IV kw. 2026.

Zapraszamy do kontaktu.